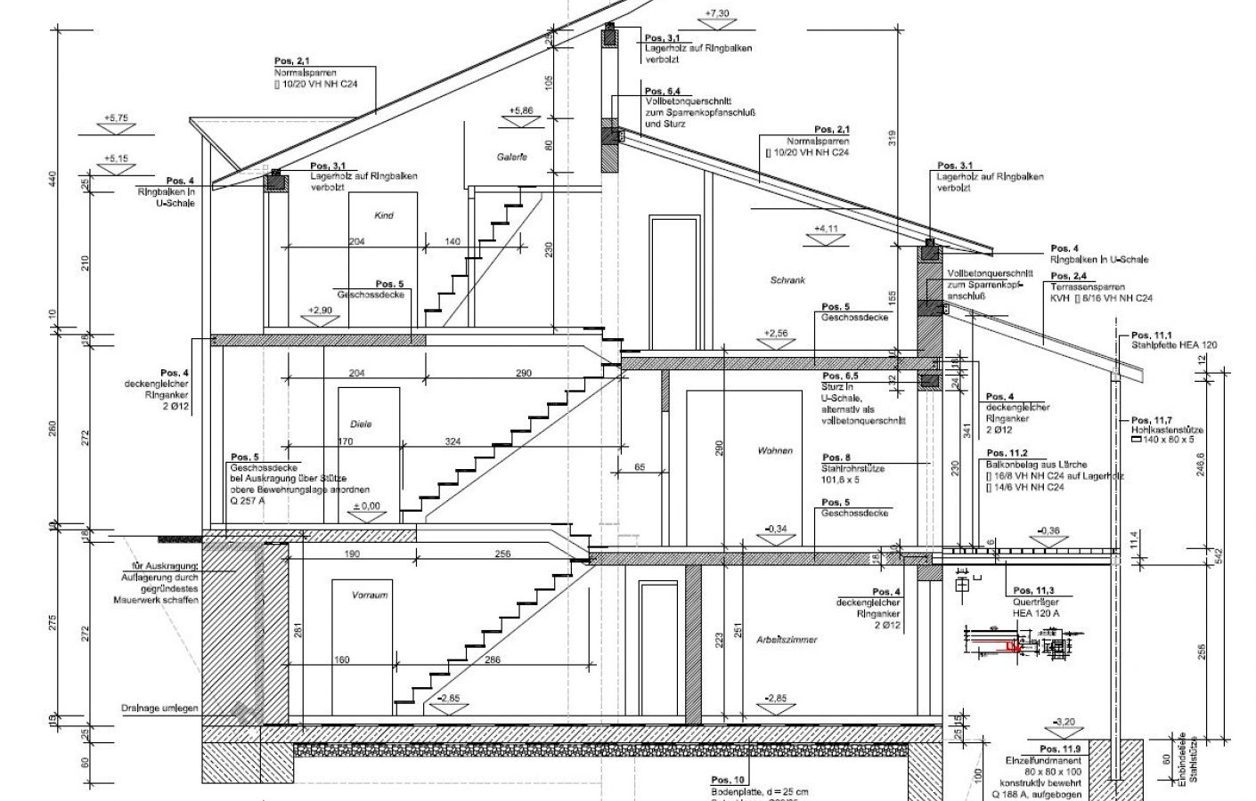
Schnitt.JPG

Tragwerksplanung für ein EFH in Nordhausen (2)

Für den Bau eines Einfamilienhauses mit Vollkeller führten wir 2006 die Tragwerksplanung aus.

Ausführungszeitraum: 2006
Auftraggeber: Privat
Gesamtinvestition: -/-