
Umbau eines Wohnhauses in Nordhausen
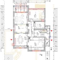
Der Bauherr beauftragte uns mit dem Umbau seines Wohnhauses in Nordhausen. Ziel war es, die Raumhöhe des Kellergeschosses zu vergrößern. Es erfolgte zudem ein Trockenlegung und eine Umgestaltung des gesamten Erdgeschosses.
Leistungen: Genehmigungs- und Ausführungsplanung, Tragwerksplanung, Bauleitung
Ausführungszeitraum: 2018-2019
Auftraggeber: Privat
Gesamtinvestition: -/-
Auftraggeber: Privat
Gesamtinvestition: -/-


zu Projekten | Startseite

