
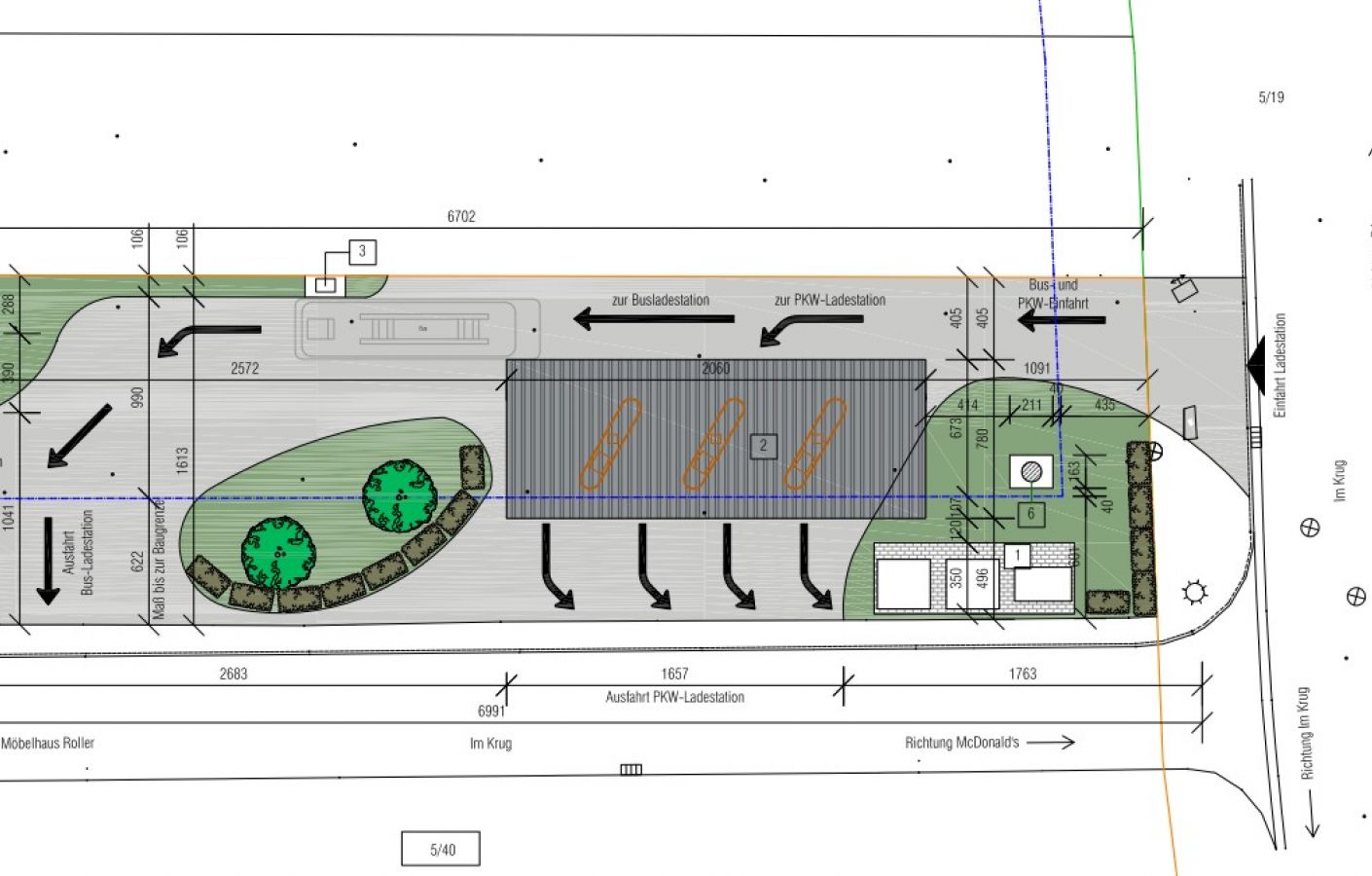
Ladepark Nordhausen
Neubau eines Ladeparks für Elektrofahrzeuge in der Gemarkung Bielen.
Aufgaben:
- Entwurfs- und Genehmigungsplanung
- Ausschreibung Tiefbauarbeiten
Ausführungszeitraum: 2018
Auftraggeber: EPGM Ladepark GmbH
Gesamtinvestition: < 300.000 EUR
Auftraggeber: EPGM Ladepark GmbH
Gesamtinvestition: < 300.000 EUR





zu Projekten | Startseite

