
Komplexsanierung Schillergymnasium, Bleicherode - Tragwerksplanung
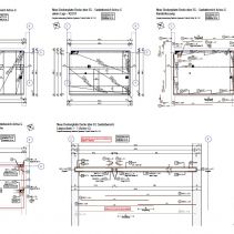
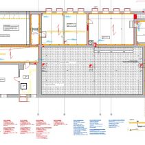
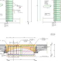
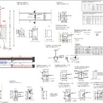
Vom Landkreis Nordhausen wurden wir mit der Tragwerksplanung zum Vorhaben: Komplexe Innensanierung des Schillergymnasiums in Bleicherode beauftragt. Bei diesem komplexen Vorhaben mussten u. a. komplette Deckenbereiche ausgetauscht werden. Des Weiteren waren Ab- und Unterfangungen zu planen und auszuführen. Das Schillergymnasium soll mit Beginn des neuen Schuljahres 2022/2023 übergeben werden.
Leistungen: Tragwerksplanung, LP 1-6, u. a. Bauteilöffnungen, Schal- und Bewehrungspläne bzgl. Deckenstreifen in Bestandsdecken (u. a. Bährsche Decken), Ausführungsplanung Stahlbau, Statische Baubegleitung
Architektur: Nording Bauplanung, M. Waldheim
Ausführungszeitraum: 2019-2021
Auftraggeber: Landratsamt Nordhausen
Gesamtinvestition: > 6 Mio EUR
Auftraggeber: Landratsamt Nordhausen
Gesamtinvestition: > 6 Mio EUR




























zu Projekten | Startseite

